Witaj w świecie teatru! Zanim jeszcze usłyszysz pierwsze dźwięki orkiestry czy zobaczysz unoszącą się kurtynę, masz szansę poczuć jego magię. Ta magia zaczyna się często w przestrzeni, która dla wielu jest tylko przejściem, miejscem chwilowego postoju. Mowa oczywiście o foyer sercu teatralnego rytuału, które zasługuje na uwagę i docenienie. To tutaj, w eleganckich wnętrzach, zaczyna się Twoja podróż do świata wyobraźni, zanim jeszcze zajmiesz miejsce na widowni.
Zanim uniesie się kurtyna: Czym tak naprawdę jest teatralne foyer?
Wielu z nas kojarzy foyer jedynie z miejscem, gdzie zostawiamy płaszcz w szatni lub gdzie można kupić coś do picia podczas antraktu. Jednak foyer to znacznie więcej niż tylko korytarz czy poczekalnia. To pierwsza przestrzeń, z którą styka się widz po przekroczeniu progu teatru, a jej wystrój, atmosfera i funkcjonalność są integralną częścią całego doświadczenia kulturalnego. Foyer to wizytówka teatru, miejsce, które już od progu ma wprowadzić widza w odpowiedni nastrój i przygotować go na nadchodzące emocje.
Od "ogniska" do eleganckiego salonu: Skąd wzięła się nazwa i jaka jest historia foyer?
Nazwa "foyer" ma swoje korzenie we francuskim słowie oznaczającym "ognisko" lub "palenisko". Ta etymologia nie jest przypadkowa. W historycznych teatrach, gdzie sale widowiskowe często były słabo ogrzewane, foyer pełniło rolę jedynego ciepłego miejsca. To tam widzowie, zwłaszcza w chłodniejsze dni, mogli się zebrać, ogrzać i nawiązać pierwsze rozmowy przed rozpoczęciem spektaklu. Z czasem, w miarę rozwoju architektury teatralnej i wzrostu znaczenia komfortu widzów, foyer ewoluowało. Z prostego, ogrzewanego pomieszczenia przekształciło się w przestronny, często bogato zdobiony salon, który stał się integralną częścią teatralnego życia, miejscem spotkań towarzyskich i wizytówką każdej szanującej się instytucji kultury.
Foyer w teatrze definicja, którą warto znać, by w pełni docenić to miejsce
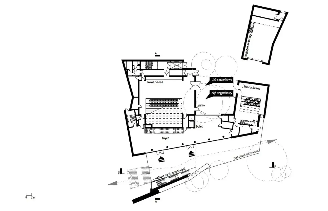
Aby w pełni zrozumieć rolę foyer, warto znać jego precyzyjną definicję. Foyer to reprezentacyjne, obszerne pomieszczenie lub zespół pomieszczeń w teatrze, operze czy filharmonii, znajdujące się w pobliżu widowni. Jest to przestrzeń zaprojektowana z myślą o widzach, służąca nie tylko jako miejsce tranzytowe, ale przede wszystkim jako przestrzeń do odpoczynku, rozmów i kulturalnego spędzania czasu przed spektaklem i w jego przerwach. To właśnie tutaj widzowie mogą poczuć się częścią teatralnego świata, zanim jeszcze kurtyna się podniesie.

Więcej niż poczekalnia: Kluczowe role, jakie pełni foyer
Foyer teatru to przestrzeń wielowymiarowa, której funkcje wykraczają daleko poza zwykłe miejsce, gdzie czeka się na rozpoczęcie wydarzenia. To dynamiczne centrum życia teatralnego, które żyje własnym rytmem, oferując widzom szereg możliwości i doświadczeń.
Społeczne serce teatru: Dlaczego foyer to idealne miejsce spotkań i rozmów?
Foyer jest niezaprzeczalnie społecznym sercem teatru. Zgodnie z jego przeznaczeniem, jest to miejsce stworzone dla widzów, by mogli się spotykać, nawiązywać kontakty i prowadzić ożywione dyskusje. Spacerując po przestronnych holach, rozmawiając o sztuce, czy po prostu ciesząc się wspólnym czasem w komfortowych warunkach, widzowie budują poczucie wspólnoty. To właśnie w foyer często rodzą się pierwsze wrażenia po spektaklu, wymieniane są opinie i emocje, co czyni tę przestrzeń kluczową dla budowania teatralnej społeczności.
Chwila oddechu, czyli co robić w foyer podczas antraktu?
Antrakt to idealny moment, by w pełni skorzystać z uroków foyer. Po pierwszej części spektaklu, gdy emocje jeszcze nie opadły, a wrażenia są świeże, foyer staje się miejscem, gdzie można na chwilę odetchnąć. To idealny czas na skorzystanie z hotelowego bufetu, by napić się kawy lub lampki wina, a także na krótką rozmowę z towarzyszami. Można też po prostu spokojnie przejść się, rozprostować nogi i nacieszyć się atmosferą miejsca, przygotowując się na drugą, często równie emocjonującą, część przedstawienia.
Od szatni po galerię sztuki: Co najczęściej znajduje się w przestrzeni foyer?
Współczesne foyer to nie tylko przestrzeń do przemieszczania się. Zazwyczaj oferuje szereg udogodnień i atrakcji, które wzbogacają doświadczenie widza. Wśród najczęściej spotykanych elementów znajdują się:
- Bufety i kawiarnie, oferujące szeroki wybór napojów i przekąsek.
- Szatnie, umożliwiające wygodne przechowanie odzieży wierzchniej.
- Komfortowe miejsca do siedzenia, takie jak fotele czy kanapy, zachęcające do dłuższego pobytu.
- Wystawy sztuki i ekspozycje, prezentujące dzieła artystyczne, fotografie, kostiumy czy rekwizyty.
- Plakaty i informacje o bieżących i nadchodzących spektaklach, stanowiące źródło wiedzy o repertuarze.

Architektura i atmosfera: Na co zwrócić uwagę, będąc w foyer?
Foyer teatru to nie tylko funkcjonalna przestrzeń, ale przede wszystkim miejsce o wyjątkowych walorach estetycznych. Jego architektura i wystrój mają kluczowe znaczenie dla stworzenia niepowtarzalnej atmosfery, która otula widza od pierwszych chwil wizyty.
Wystrój, który tworzy nastrój: Ozdoby, detale i elementy architektoniczne
Wchodząc do foyer, od razu zwracamy uwagę na jego architekturę. Często są to przestrzenie o imponującej skali, z bogatymi zdobieniami, takimi jak sztukaterie, rzeźby czy malowidła. Dbałość o detale, od wyboru materiałów wykończeniowych, przez eleganckie oświetlenie, po starannie dobrane meble, wszystko to składa się na tworzenie uroczystej i kulturalnej atmosfery. Foyer ma sprawiać wrażenie luksusu i wyjątkowości, przygotowując widza na magiczne chwile, które czekają go na scenie.
Sztuka nie tylko na scenie: Wystawy i ekspozycje w przestrzeni foyer
Foyer często pełni rolę galerii sztuki, prezentując dzieła, które uzupełniają teatralne doświadczenie. Można tam zobaczyć obrazy, rzeźby, fotografie, a także historyczne kostiumy czy rekwizyty, które opowiadają historię teatru lub nawiązują do aktualnie wystawianych sztuk. Te ekspozycje nie tylko wzbogacają estetykę przestrzeni, ale także stanowią dodatkową atrakcję, zachęcając widzów do dłuższego pobytu i interakcji z kulturą. Czasem foyer staje się nawet miejscem samodzielnych wydarzeń, takich jak wernisaże czy spotkania z artystami.
Najpiękniejsze foyer w Polsce i na świecie miejsca, które zapierają dech
Świat obfituje w foyer teatralne i operowe, które zachwycają swoją architekturą i bogactwem wystroju. W Polsce przykładem może być foyer Opery Narodowej w Warszawie, które imponuje swoją nowoczesnością i przestrzenią, często wykorzystywaną do organizacji wydarzeń kulturalnych. Na świecie zaś foyer Wiedeńskiej Opery Państwowej słynie z przepychu i elegancji, będąc niemal dziełem sztuki samym w sobie. Podobnie foyer Teatru Bolszoj w Moskwie, z jego złotymi zdobieniami i kryształowymi żyrandolami, stanowi symbol teatralnego splendoru.
Foyer, kulisy, widownia: Jak nie pomylić kluczowych przestrzeni w teatrze?
Teatr to skomplikowany organizm, w którym każda przestrzeń ma swoje ściśle określone przeznaczenie. Aby w pełni zrozumieć jego funkcjonowanie i docenić każde z tych miejsc, warto wiedzieć, czym różni się foyer od innych, równie ważnych, części teatralnego świata.
Świat widza kontra świat artysty: Czym foyer różni się od kulis?
Najważniejszą różnicą jest przeznaczenie tych przestrzeni. Foyer jest strefą publiczną, otwartą dla widzów, miejscem ich spotkań i odpoczynku. Z kolei kulisy to strefa prywatna, niedostępna dla publiczności. To tam artyści przygotowują się do wejścia na scenę, technicy dbają o oświetlenie i dźwięk, a cała machineria teatralna pracuje, by stworzyć iluzję na deskach. Foyer to salon dla widza, kulisy to zaplecze dla twórców.
Przeczytaj również: Jak ubrać się do teatru? Praktyczny przewodnik i porady
Czy foyer to to samo co lobby lub westybul? Wyjaśniamy różnice
Choć foyer, lobby i westybul mogą pełnić podobne funkcje być miejscem wejścia, poczekalnią czy przestrzenią przejściową to w kontekście teatralnym foyer ma ono znacznie bardziej wyspecjalizowany i kulturalny charakter. Lobby czy westybul to zazwyczaj bardziej ogólne określenia na przestrzeń wejściową budynku. Foyer w teatrze jest jednak integralną częścią doświadczenia kulturalnego. Jest często bardziej ozdobne, przestronniejsze i zaprojektowane tak, by już od progu wprowadzać widza w świat sztuki i elegancji, co odróżnia je od bardziej neutralnego charakteru typowego lobby.
Niezbędnik teatralnego bywalca: Etykieta i dobre maniery w foyer
Aby wizyta w teatrze była przyjemnością nie tylko dla Ciebie, ale i dla innych widzów, warto pamiętać o kilku zasadach etykiety obowiązującej w foyer:
- Punktualność: Przybądź do teatru z odpowiednim wyprzedzeniem. Pozwoli Ci to na spokojne skorzystanie z szatni, znalezienie swojego miejsca i uniknięcie niepotrzebnego pośpiechu.
- Ubiór: Chociaż współczesne teatry są bardziej elastyczne, elegancki strój nadal jest mile widziany i podkreśla uroczysty charakter wydarzenia.
- Rozmowy: Prowadź rozmowy w foyer w umiarkowanym tonie. Pamiętaj, że inni widzowie mogą potrzebować ciszy, by w pełni zanurzyć się w atmosferze miejsca.
- Korzystanie z bufetu: Jeśli decydujesz się na skorzystanie z bufetu, rób to kulturalnie. Unikaj głośnego jedzenia i picia, a także pamiętaj, by nie wnosić jedzenia ani napojów na widownię.
- Poruszanie się: Poruszaj się po foyer spokojnie i z szacunkiem dla innych. Unikaj biegania, przepychania się czy blokowania przejść.
- Telefon: Przed wejściem na widownię obowiązkowo wyłącz lub wycisz telefon komórkowy. Dźwięk dzwonka czy powiadomienia może zakłócić spektakl i przeszkadzać innym widzom.
